140 mq
3
2
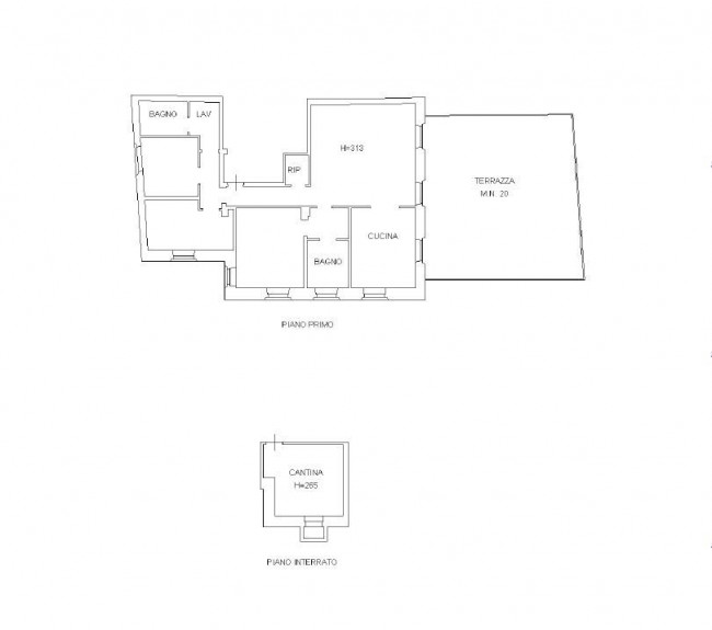
Zona ZTL Appartamento in Affitto a Verona. L'Appartamento, PRIVO DI MOBILI, situato al primo piano di un edificio storico ristrutturato. Con una superficie totale di 140 metri quadrati, dispone di spazi luminosi e ben distribuiti, ampia zona giorno con terrazza, tre camere da letto, due bagni, ripostiglio e lavanderia, posto auto coperto e cantina . La presenza di un ascensore rende l'accesso comodo e agevole, è in ottimo stato di conservazione, con riscaldamento autonomo. Per informazioni e visite chiamare Grazia 366 9068288 (in orario ufficio) o inviare richiesta via email info@areaaffari.com.

140 mq
3
2